Vente Maison de Village 85 m² + Garage et Terrasse à Saint-Mitre-les-Remparts
SAINT-MITRE LES REMPARTS (13920)
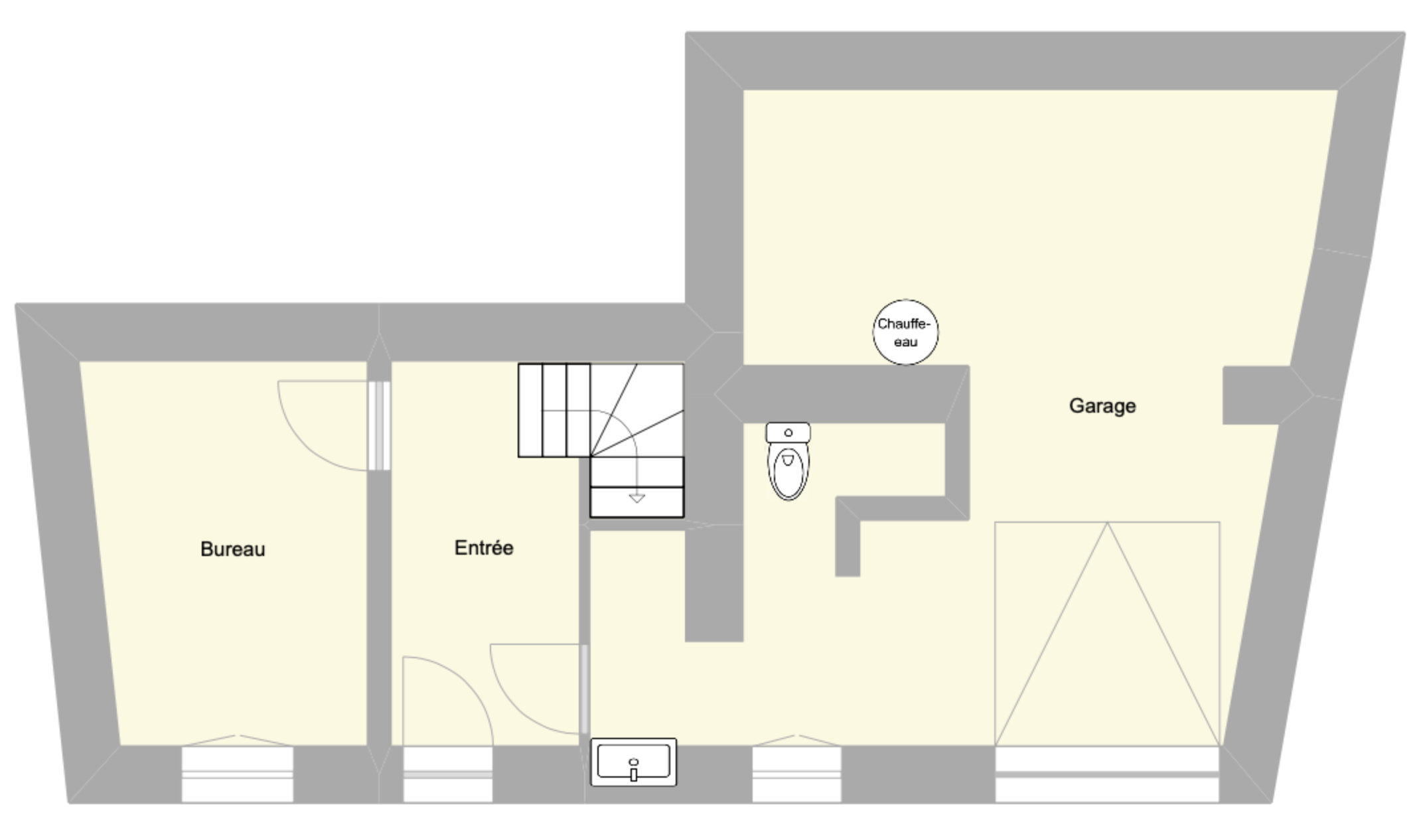
250 000€ Maison de village T4 Surface : 85m²EXCLUSIVITÉ – Située à proximité immédiate du centre du village de Saint-Mitre-les-Remparts, Charmante maison de village en R+2 d’environ 85 m² habitables vous séduira par son caractère, sa luminosité et sa terrasse sur le toit. Elle se compose d’une agréable pièce de vie lumineuse avec cuisine ouverte donnant accès à une grande terrasse exposée plein sud. Côté nuit, vous trouverez deux chambres, un dressing indépendant, ainsi qu’une spacieuse salle de bain avec WC séparé. A l’entrée un bureau pouvant faire office de troisième chambre ou d’espace pour une activité indépendante, un WC ainsi qu’un garage privatif permettant de stationner un véhicule et d’aménager un espace de vie supplémentaire. DPE nouvelle version. Montant moyen estimé des dépenses annuelles d’énergie pour un usage standard, établi à partir des prix de l’énergie de l’année 2021,2022,2023 : entre 1890€ et 2590€. Les informations sur les risques auxquels ce bien est exposé sont disponibles sur le site Géorisques: www.georisques.gouv.fr. Prix: 250000€ (les honoraires de l’agence compris dans le prix seront intégralement à la charge des acquéreurs)
Caracteristiques détaillées
- Surface habitable : 85m2
- Situation : PROCHE DU CENTRE DU VILLAGE
- Etat du bien : TRES BON
- Pièces : 4
- Chambres : 3
- Salle(s) d'eau : 1
- WC : 2
- Cuisine(s) : 1
- Garage(s) : GARAGE
- Chauffage : ELECTRIQUE
- Prestations extérieures : TERRASSE SUR LE TOIT
- Taxe Foncière : 933€






















